В избранном
В избранное
Пожаловаться
Напечатать
Следить за ценой

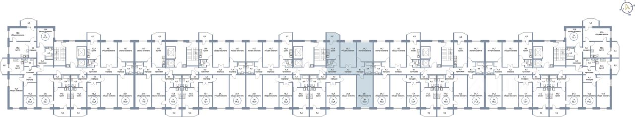
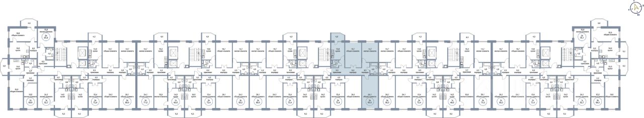
продам 3-к, Югорский тракт, 50/39 050 000 ₽

7 окт
Обн. сегодня
1
95 263 ₽/м²
  • Чистая продажа