В избранном
В избранное
Пожаловаться
Напечатать
Следить за ценой

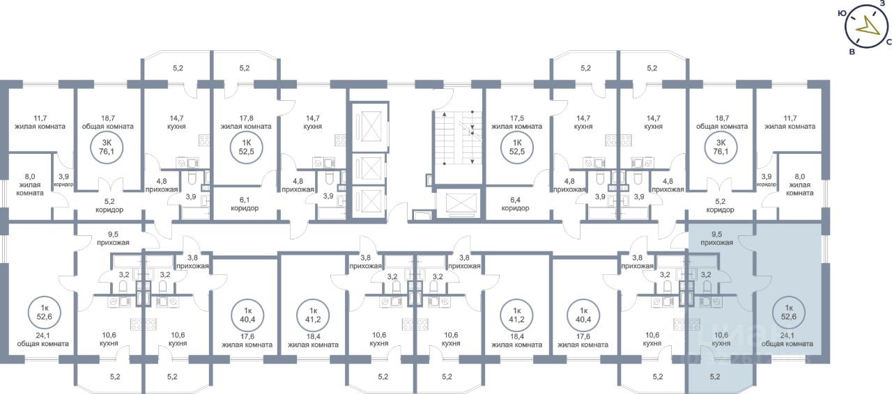
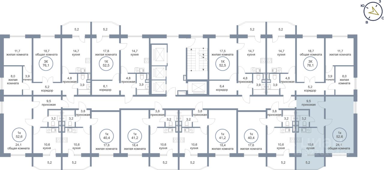
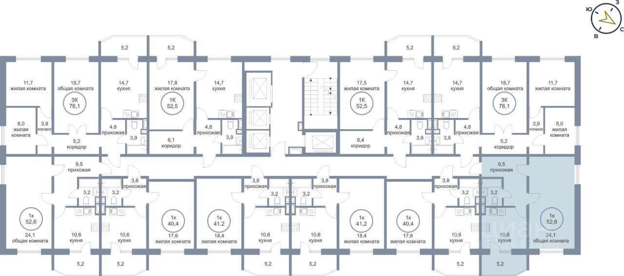
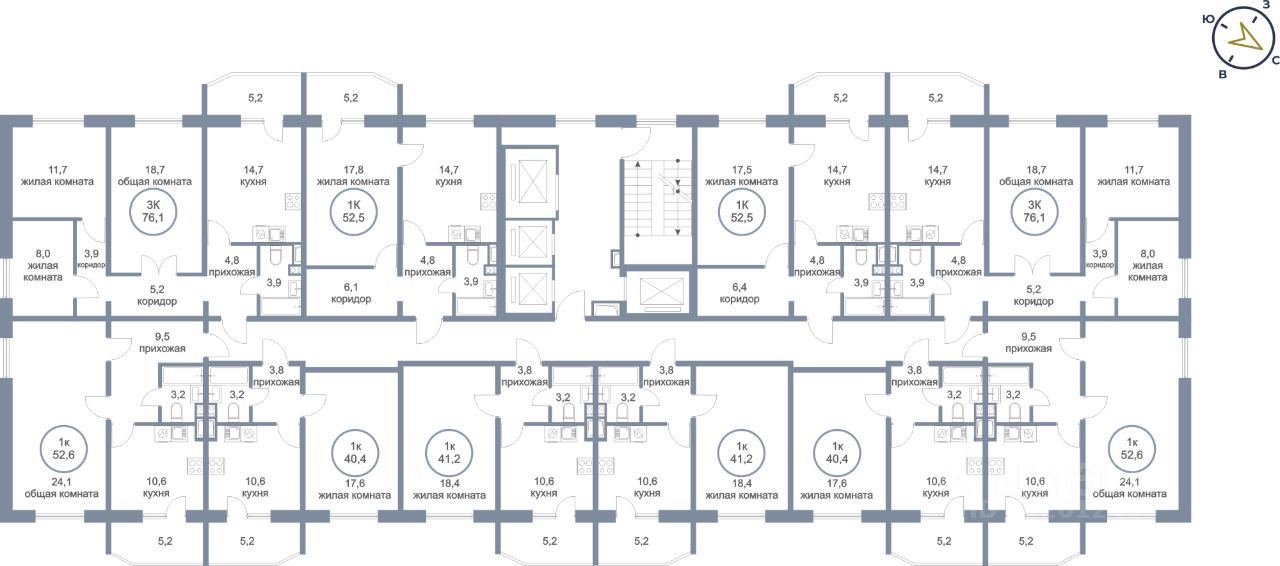
продам 1-к, Сосновая, 695 455 000 ₽

7 окт
Обн. сегодня
103 707 ₽/м²
  • Чистая продажа