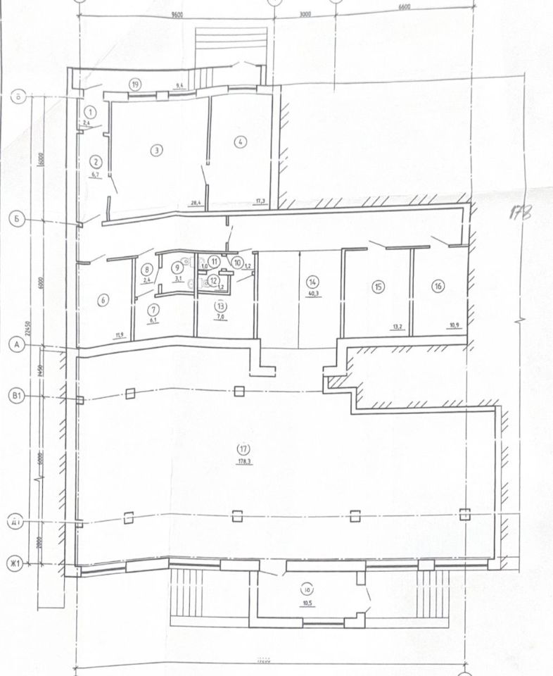
Помещение свободного назначения расположено в Центральном районе города, с развитой инфраструктурой, на первом этаже 5-ти этажного жилого дома. Помещение встроенно-пристроенное, состоящее из двух входных групп, торгового зала , трех кабинетов, двух с/узлов , серверной.
Центральные инженерные сети, мощность эл.энергии 15 квт, с возможностью увеличения. Отделка черновая, арендные каникулы по договоренности.
1-я Линия, высокий автомобильный и пешеходный трафик. Возможное применение под широкий спектр коммерческой деятельности.



