Если цена в объявлении изменится, мы сразу сообщим вам об этом на электронную почту.
Нажимая «Подписаться», вы соглашаетесь с правилами.
продам 3-к, Гастелло, 156 500 000 ₽
21 янв
Дата публикации объявления
Обн. 2 апр
Дата обновления объявления
102 848 ₽/м²
Чистая продажа
Термин "Чистая продажа" означает, что в квартире никто не прописан или
есть куда выписаться и вывезти вещи. Это лучший вариант для покупателя.
Вероятность срыва сделки минимальна.
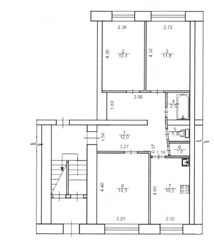
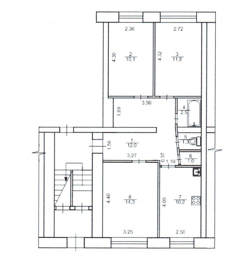
К продаже предлагается уютная 3-кoмнатнaя квартира в панельном доме 1993 года постройки.
Жилые комнаты изолированные (14,3 м² + 10,1 м² + 11,8 м²), просторная кухня (10,2 м²), раздельный санузел, кладовая, везде установлены пластиковые окна, имеются счетчики на холодное, горячее водоснабжение, электроэнергию и газ.
Внесен аванс до 13.04.2026
К продаже предлагается уютная 3-кoмнатнaя квартира в панельном доме 1993 года постройки.
Жилые комнаты изолированные (14,3 м² + 10,1 м² + 11,8 м²), просторная кухня (10,2 м²), раздельный санузел, кладовая, везде установлены пластиковые окна, имеются счетчики на холодное, горячее водоснабжение, электроэнергию и газ.
В квартире сделан хороший косметический ремонт:
- пол: в прихожей ламинат, в комнатах застелен линолеумом, в санузле, кладовой, кухне облицован кафельной плиткой, - стены: в комнатах, коридоре, прихожей, кухне - обои, в ванной комнате облицованы кафельной плиткой, в кладовой облицованы пластиковыми панелями, - потолки: везде натяжные, в кладовой пластиковые панели, - установлены качественные входная сейф-дверь и межкомнатные двери.
В КВАРТИРЕ ОСТАЮТСЯ ВСЯ МЕБЕЛЬ И ТЕХНИКА.
Коммунальные платежи: летом - до 6000 рублей, зимой - до 9000 рублей.
Во дворе: автопарковка с достаточным количеством парковочных мест, детская игровая площадка.
Дом расположен в районе с развитой инфраструктурой: школа, детский сад, парк, больница, спортивный комплекс, центр адаптивного спорта, ТЦ Столичный Сити, магазины, аптеки, остановки общественного транспорта - все в шаговой доступности.
Три собственника.
Оказываем профессиональное содействие в получении ипотеки.