1-к, Федоровский городское поселение Показать на карте
Федоровский городское поселение
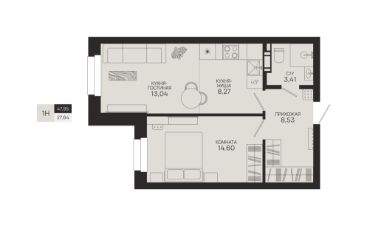
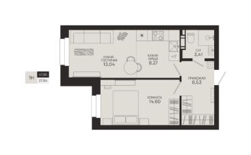
Продаётся 1-комнатная квартира в строящемся доме (Корпус 2), срок сдачи: I-кв. 2027, общей площадью 44.37 кв.м., на 4 этаже. Новый жилой комплекс ''ПРЕМЬЕР'' от Специализированного застройщика ''Строй Актив'' расположен по адресу: пгт Фёдоровский, по пр. Промышленный.
44 м2
4 / 5 этаж
Бетонные блоки
- Показать контакты
- Добавить в избранное
44 м2
4 / 5 этаж
Бетонные блоки
6 200 000
139 734 /м2
Новостройка,
I-2027
I-2027
